Subscribe

666_Funky Buka_01
Funke’s Gral
Funke’s Gral

Funky Buka


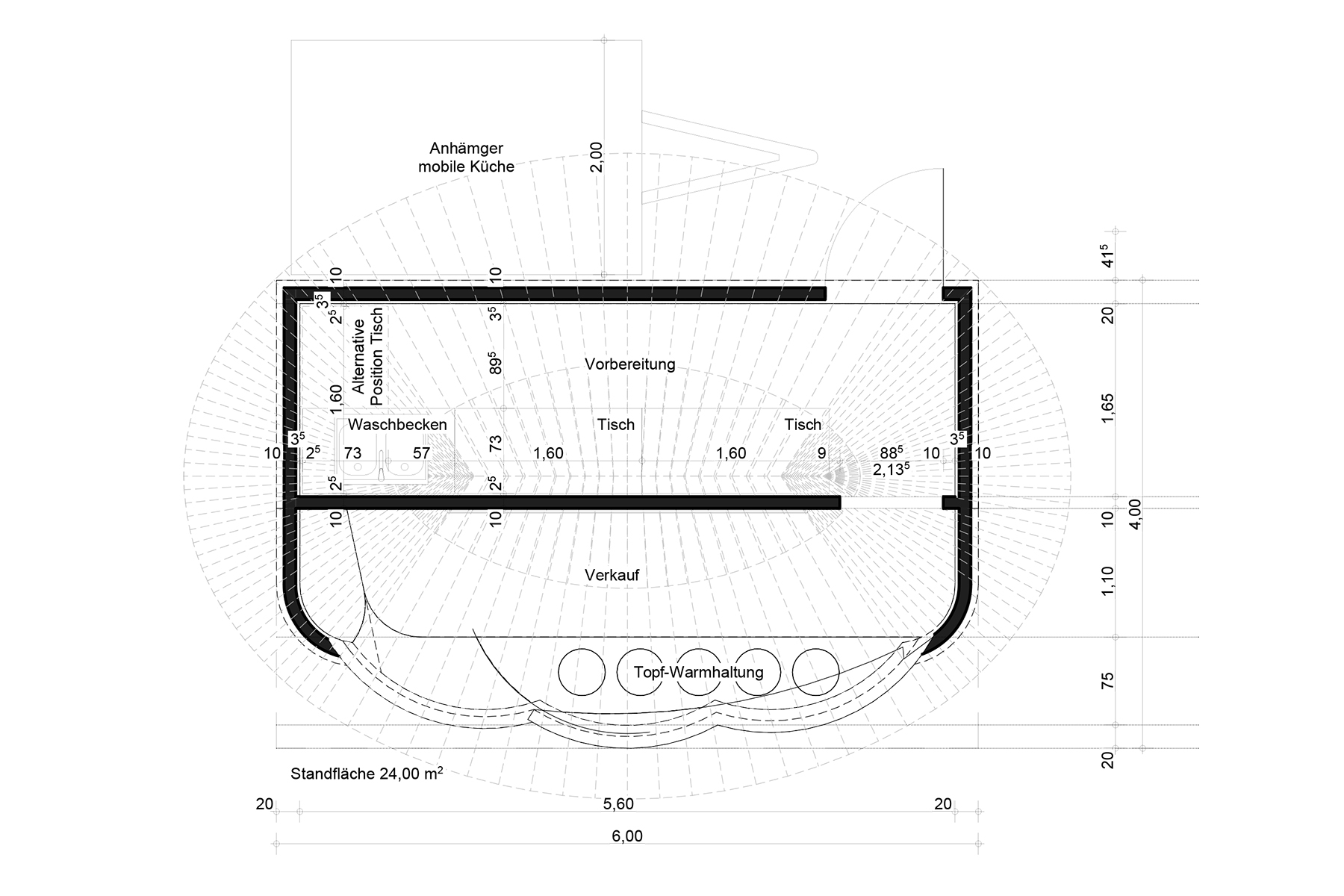
Entwurf eines Verkaufsstands für das Tollwood München

Das Projekt wurde von Michael Biedermann als Geschäftsführer und Inhaber der DBLB Planungsgesellschaft mbH durchgeführt

Ort München
Bauherr privat
Größe ~ 24 qm Standfläche
Leistungsphase 3
Zeitraum 2019